面積雖小,氣勢不能輸!這幾個小型辦公室裝修設計要素必須得有!
小型辦公室在面積上比一般辦公室具有先天的劣勢,但還想要裝的好看又有氣勢?那這幾個小型辦公室裝修設計要素必須得安排上,這可都是從知名南寧辦公室裝修公司—燦源裝飾實戰案例中總結出來的經驗哦!
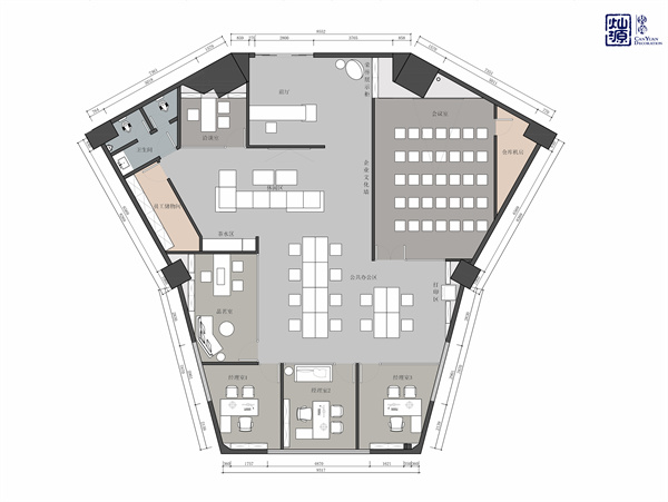
1.合理布局
“麻雀雖小五臟俱全”,即使是小型辦公室裝修設計,該有的功能性咱也得有。面積小也不怕,做好規劃,根據各功能區使用頻率及人數多少合理分配面積占比,公共辦公區域、獨立辦公室各占30%,前臺占10%,休閑區或茶水間占10%,會議室占5%,洽談室占10%,剩余5%可根據實際情況及分區自由分配,看你中意哪一個咯!

2.墻體文化設計
想要在小型辦公室裝修設計中盡可能多的發揮作用,就要盡可能的發掘可利用空間。燦源裝飾經過多年研究實戰,集合多位設計師心血,發展出一套特色墻體文化設計業務?筛鶕追睫k公室裝修需求、行業性質、客戶群體、企業文化等諸多因素,搭配設計方案風格,打造專屬墻體文化設計,將原本枯燥單調的白墻利用起來,同時滿足美觀、實用的功能性,從側面折射出公司實力,給每一位來訪的客戶更加深刻的視覺及心理印象!關鍵是現在打電話聯系燦源裝飾,這個特色業務還能免費送!不要白不要。

3.提高空間利用率
對于小型辦公室裝修設計來說,空間利用率就是衡量其實用性的一項重要標準。燦源裝飾在過往眾多案例中,經常采用各種小方法,比如:共享辦公桌+儲物柜隔斷、根據辦公室格局打造的異形家具、玄關隔斷、背景墻展示架等,就連墻上空間他們也不放過。如圖:除了顏色、材質各異的儲物柜,就連墻上,也被釘了木質與鐵藝的橫隔架子,用來展示陳列物品,既實用,又美觀,誰不愛。

小型辦公室裝修設計,就找廣西燦源裝飾設計工程有限公司。上百種設計風格,滿足各種裝修需求,BIM創意設計+草圖方案可視化,設計即實景!材料廠家直供,施工隊伍自有,質量價格精準把控,直省裝修成本20%!真正實惠與性價雙重享受的裝修體驗!現在聯系,即送超值大禮哦!
本文地址:http://www.gtslaw.cn/index-articleshow-id-3337-catid-36.html




